Adresse
40410 Moustey
Horaires

Du lundi au vendredi de 9h à 17h

Menu

Conception de plans

Découvrir

Relevés de bâtiments

Découvrir

Gestion administrative

Découvrir

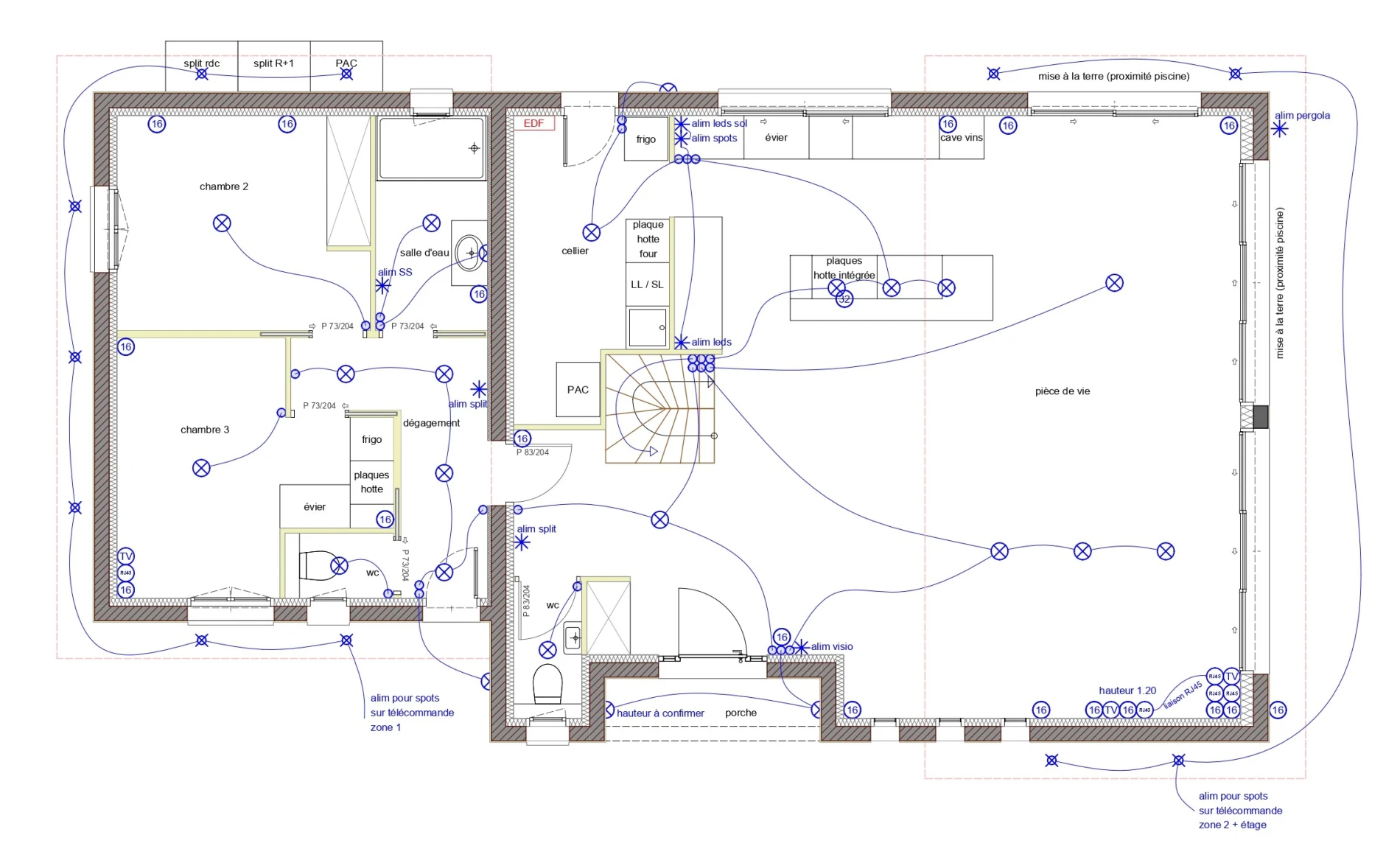
Plan électrique

Plan électrique pour maison neuve. 

Plan rez de chaussée

plan étage

Mes clients témoignent
Réalisons
votre
projet !